服务热线
0373-3526678
生产线布置图
上料平台—开卷机—伺服送料—冲孔冲压—辊压成型—切断—翻转送料

概述
设备概述:
1.双悬臂齿轮传动装置,机器的制造宽度可调整持续,可改变型材的宽度和高度。
2.牌坊20道成型,主机由交流电机,减速机,牌坊,变速箱,水平调节系统和轧制模具。机座和传输采用焊接结构,具有硬度的处理,轧辊材质为45#钢。
3.辊压成型工艺是由德国COPRA软件制作;进行有限元工艺分析和检查。提高线速度,降低成形阻力。从而保证设备的准确度和稳定性。

桥架成型、码垛、打包全自动冷弯生产线


| 参数表 | 项目 | 单位 | 参数 | 备注 | |
1 | 原材料规格 | 类型 | 镀锌带钢 | ||
| 强度 | MPa | ≤350 | |||
| 厚度 | mm | 1.6-3.2 | |||
| 卷料内直径 | mm | 500,600 | |||
| 重量 | T | 5 | |||
| 2 | 板型宽度 | mm | 100-320 | ||
| 3 | 生产线速度 | m/min | 25 | ||
| 4 | 轧辊材质 | D2淬火处理 | |||
| 5 | 轧辊驱动 | External chain transmission外部传动 | |||
| 6 | 操作系统 | Windows2000 | |||
| 7 | 总电机功率 | Kw | 大约65KW | ||
| 8 | 电气控制系统 | PLC自动控制系统 | |||
| 9 | 维度(L*W*H) | m | 30X2X1.7 | ||


电缆桥架冷弯成型生产线成型部分

桥架冷弯生产线剪切部分


电缆桥架冷弯成型生产线传动部分
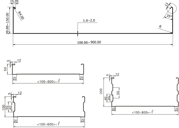
电缆桥架板型图
桥架设备成品型钢









24小时服务热线:15225939987

电话:0373-3526678
传真:0373-3526676
手机:15225939987
Skype:tianfengjixie1
邮箱:market@tfmm.com
地址:河南省新乡市开发区新一街17号
